GIỚI THIỆU DỰ ÁN BID RESIDENCE
Chung cư BID Residence Văn Khê là tổ hợp căn hộ cao cấp, trung tâm thương mại và dịch vụ do Công ty Cổ phần BID Group làm chủ đầu tư xây dựng tại vị trí mặt đường Lê Văn Lương kéo dài, Tố Hữu, thuộc Khu đô thị Văn Khê, quận Hà Đông, thành phố Hà Nội.
Chung cư BID Residence là sản phẩm căn hộ được rất nhiều khách hàng khu vực phía Tây quan tâm, bời vì dự án sở hữu vị trí đắc địa, giá bán hợp lý, tiện ích đẳng cấp, được giới chuyên gia đánh giá là 1 trong 3 dự án chung cư xứng đáng để sở hữu nhất năm 2020 khu vực quận Hà Đông – Hà Nội.
THÔNG TIN TỔNG QUAN DỰ ÁN
- Tên dự án: Tổ hợp căn hộ chung cư, trung tâm thương mại và dịch vụ
- Tên thương mại: Chung cư BID Residence Văn Khê
- Chủ đầu tư: Công ty Cổ phần BID Group
- Đơn vị phát triển dự án: BIDGroup
- Địa chỉ dự án: Mặt đường Tố Hữu, Khu đô thị Văn Khê, Quận Hà Đông, Hà Nội
- Đơn vị thi công: Tổng thầu EPC BIDCONS
- Đơn vị quản lý tòa nhà: Savills Việt Nam
- Tư vấn thiết kế: Công ty Cổ phần Tư vấn Thiết kế NDA Group
- Ngân hàng bảo lãnh: Ngân hàng Nông nghiệp – Chi nhánh Nam Hà Nội
- Quy mô dự án: Gồm 2 tòa chung cư: 1 tòa tháp cao 35 tầng và 1 tòa 50 tầng, 2 tầng hầm, 5 tầng trung tâm thương mại và dịch vụ.
- Tổng số căn hộ: 804 căn
- Tầng 1- 3: Tầng thương mại và dịch vụ
- Tầng 4: Tầng kỹ thuật
- Tầng 5-19: Khu căn hộ: 18 căn/tầng (270 căn hộ)
- Tầng 20: Gian lánh nạn + 13 căn hộ
- Tầng 21-23: Khu căn hộ: 18 căn/tầng (54 căn hộ)
- Tầng 24-32: Khu căn hộ: 25 căn/tầng (250 căn hộ)
- Tầng 34: Gian lánh nạn + 5 căn hộ
- Tầng 35-41: Khu căn hộ: 18 căn/tầng (126 căn hộ)
- Tầng 42-46: Khu căn hộ: 12 căn/tầng (60 căn hộ)
- Tầng 47 – 48: Khu căn hộ: 11 căn/tầng (60 căn hộ)
- Tầng 49: 6 căn hộ
- Tầng 50: 6 căn hộ
- Thời điểm khởi công: 22/6/2019
- Bàn giao dự kiến : Quý III/2021.
- Hình thức sở hữu : Sổ hồng lâu dài với người Việt Nam; 50 năm với người nước ngoài;
- Pháp lý dự án BID Residence Văn Khê: Đầy đủ & Rõ ràng
- Hình thức sở hữu: Sổ hồng vĩnh viễn
- Giá bán căn hộ BID Residence: từ 21,5 tr/m2
- Ngân hàng giải ngân cho vay: Ngân hàng Vietcombank
VỊ TRÍ DỰ ÁN BID RESIDENCE HÀ ĐÔNG
Dự án BID Residence tọa lạc tại cửa ngõ của KĐT Văn Khê, trên trục đường Tố Hữu hướng tâm thành phố kết nối trực tiếp với các tuyến giao thông huyết mạch như: tuyến bus BRT, đường Lê Trọng Tấn, Lê Văn Lương, Vành đai 3, đường sắt trên cao Hà Đông – Cát Linh…
- Phía Tây Bắc: Giáp với đường Tố Hữu
- Phía Đông Nam: Giáp với khu nhà ở thấp tầng – Khu đô thị mới Văn Khê
- Phía Đông Bắc : Giáp khu nhà ở mới phường Vạn Phúc.
- Phía Tây Nam : Giáp với khu đô thị Usilk City
Nhờ vị trí vàng tại khu đô thị Văn Khê cư dân sinh sống tại BID Residence vô cùng thuận lợi khi tham gia giao thông cũng như tiếp cận với các tiện ích trong khu vực như bệnh viện, trường học, khu trung tâm thương mại.
- Ga tàu điện trên cao.
- Trung tâm hành chính quận Hà Đông: 1.2km
- Chợ Hà Đông : 1.2km
- Siêu thị Metro: 1.5 km
- Siêu thị AEON MALL: 1.5km
- Học viện An Ninh: 2km
- Đại học Công Nghiệp: 2.5km
- Đối diện Trường quốc tế Nhật Bản JIS
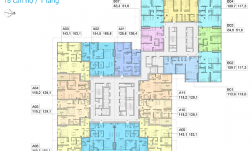
MẶT BẰNG THIẾT KẾ BID RESIDENCE VĂN KHÊ
Quy mô chung cư BID Residence Văn Khê gồm 2 tòa chung cư được thiết kế với: 1 tòa tháp cao 35 tầng, 1 tòa tháp cao 50 tầng, 02 tầng hầm và 5 tầng thương mại dịch vụ. Trong đó, gồm 03 tầng thương mại, 01 tầng kỹ thuật, từ tầng 5-50 là căn hộ chung cư với 804 căn. Tổng mức đầu tư dự án lên tới 1.020 tỷ đồng. Dự kiến, dự án sẽ hoàn thành và bàn giao vào Quý III/2021.
Chuỗi tiện ích nội khu liên hoàn chưa từng có trong khu vực
Chung cư BID Residence Văn Khê được bố trí chuỗi tiện ích liên hoàn từ tầng 1 đến tầng 50 với mục tiêu kiến tạo không gian sống tiện nghi, đẳng cấp cho cư dân. Dự án dành nhiều không gian cho sinh hoạt cộng đồng, kết nối giới trẻ bởi với BID Residence, nhà phải là tổ ấm, là nơi từng cá nhân được hạnh phúc, mỗi gia đình đều an vui, là cộng đồng văn minh, lịch thiệp, hưng thịnh. Chung cư BID Residence sở hữu Trung tâm thương mại có thang cuốn – duy nhất trong khu vực và hệ thống vườn treo liên hoàn đến tầng 50 – mật độ cây xanh nội tòa nhà lớn nhất khu vực.
Các tiện ích nội, ngoại khu hoàn chỉnh trong bán kính 1km góp phần mang đến cuộc sống tiện nghi hoàn hảo cho cư dân BID Residence Văn Khê. Ngoài ra, được hỗ trợ bởi hai hệ thống giao thông công cộng hiện đại bậc nhất thành phố là tuyến buýt BRT và đường sắt trên cao Cát Linh – Hà Đông, cư dân có thể tạm quên đi nỗi lo tắc đường, thiếu chỗ gửi phương tiện cá nhân khi di chuyển đến trung tâm thành phố.
Tại sao chọn BID Residence
Vị trí số 1 khu Hà Đông – Giữa ngã tư sầm uất, view công viên Thiên văn học, Giao thông công cộng thuận tiện, hiện đại nhất Thủ đô: BRT, đường sắt trên cao Cát Linh – Hà Đông…
Di chuyển trong tòa nhà nhanh chóng, dễ dàng với hệ thống 11 thang máy cho cư dân, thang cuốn Misubishi nhập khẩu, hệ thống trang thiết bị phòng cháy chữa cháy hiện đại tiên tiến.
Khối đế thương mại liên hoàn đẳng cấp – tòa nhà duy nhất có thang cuốn trong khu vực
BĐS khu vực có tiềm năng tăng giá mạnh nhờ các “cú huých”: Aeon Mall, công viên Thiên văn học,…
Chuỗi tiện ích nội khu liên hoàn chưa từng có trong khu vực: Ngoài những lợi thế về tiện ích khu vực. Chung cư BID Residence còn được xây dựng với thiên hướng “xanh – trong lành”. Với các tiện ích đẳng cấp và hiện đại như phòng GYM + Spa + nhà trẻ + vườn treo + vườn thiên văn học + phòng thiền….
Cơ cấu sản phẩm đa dạng, nhiều căn diện tích nhỏ: Các căn có diện tích từ 64-117m2, thiết kế linh hoạt, gồm 2 đến 3 phòng ngủ, giúp đa dạng hóa lựa chọn của khách hàng.
Bàn giao nội thất cao cấp: điều hòa nhập khẩu, Sàn gỗ cao cấp, cửa lõi thép chống cháy







